2000噸船體板材成型液壓機液壓缸正確使用?
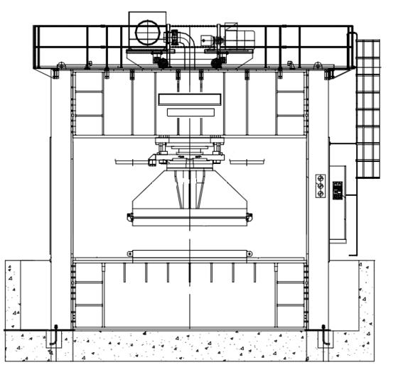
船體板材成型液壓機也稱為龍門式船舶板材壓制液壓機,常用噸位有2000噸、2500噸、3000噸龍門框架式液壓機,用于彎制壓制鋼板,鋼板的材質為碳鋼、低合金鋼、高合金鋼 (不銹鋼、有色金屬和及其合金)、船用鋼等。機身是箱型焊接結構,由高質量鋼板焊接而成。所有板材要求拋丸處理。機身噴涂2層防銹漆。液壓系統需安裝在機身上,并且易于裝卸、維護和修理。配有觸摸屏控制、急停按鈕、工作燈等。液壓缸是組成2000噸船體板材成型液壓機的重要組成部分,在使用時有一定的注意事項,以免出現故障問題:

船體板材成型液壓機
1、2000噸船體板材成型液壓機液壓缸培封件硬度選擇92度~97度,液壓缸壓力越高,選擇密封件硬度越大。
2、培封件唇口的線速度要滿足O.5米/秒。
3、培封件耐溫要滿足-30℃~110℃溫度。因為密封件唇口接觸面的溫度要高于液壓油溫度,所以密封件選擇要耐高溫110℃;而有些地方的氣溫在-30℃左右,所以密封件的選擇要耐低溫-30℃。
4、要選擇專用密封件,如軸密封,只能選擇軸專用密封件。活塞密封只能選擇活塞專用密封件,而不能選擇軸與活塞兩用密封件。因為兩用密封件底部寬度小于專用密封件底部寬度。液壓缸在高壓時兩用密封件底部變形量大,專用密封件在同等壓力時底部較寬,壓縮變形量較小,被活塞桿擠出的可能性就變小。液壓缸密封件底部要加上2000噸船體板材成型液壓機油缸墊圈。為什么要加墊圈,墊圈硬度是多少?由于油液壓油缸壓力在25Mpa以上,密封件的高度決定了密封件底部變形量的大小,也就是擠出間隙的大小,因為墊圈也有硬度,也有變形量,加上墊圈等于減少了密封件的變形量,液壓缸使密封件在高壓時,液壓缸底部減小了與活塞桿或液壓油缸內壁產生摩擦的可能性,從而減少密封件根部被擠出拉傷而損壞的幾率。墊圈硬度和壓力的關系是,壓力越大,硬度越大。

船舶板材成型液壓機
山東威力重工設計生產的2000噸船體板材成型液壓機主油缸采用雙缸結構。油缸缸體采用優質碳素鋼45#整體鍛件,油缸內表面經過珩磨、滾壓工藝,使液壓油缸具有足夠的強度和剛度。柱塞桿采用優質碳素鋼鍛件,其表面經中頻淬火處理,硬度在HRC42~50之間并且表面鍍鉻。油缸密封采用優質密封件密封,確保密封性能可靠,使用壽命長。
本文由:四柱液壓機廠家 搜集整理
本文由:四柱液壓機廠家 搜集整理
上一篇:上一篇:630噸不銹鋼廚具拉伸液壓機油缸結構與安裝?
下一篇:下一篇:2500噸火車門板壓型液壓機運行中有噪音原因?






