鍛造挖掘機斗齒一次成型機設備,挖掘機斗齒鍛造成型工藝,熱鍛5公斤斗齒需要選用多大的機器設備,首先我們需要了解,鍛造挖掘機斗齒選用哪種機器設備合適?隨著人們對于環境及能源的要求,越來越多的人選擇使用熱鍛液壓機來實地對一些鍛件的生產,挖掘機斗齒就是其中一種。斗齒是挖掘機上的重要易耗部件,類似于人的牙齒,是由齒座和齒尖組成的組合斗齒,二者靠銷軸連接。斗齒屬于易損件,市場需要量大,鍛造斗齒更耐磨、硬度也更大,使用壽命是鑄造斗齒的2倍左右,而價格是鑄造斗齒的1.5倍左右。5公斤斗齒熱鍛機-2000噸挖掘機斗齒熱模鍛成型液壓機具有鍛造范圍廣、鍛造能力強、操作方便、使用可靠等特點。鍛造液壓機可進行拔長、鐓粗、精鍛造等工序,還可鍛造環形零件、25MN以上液壓機可進行模鍛件生產。能夠制造這種大型斗齒熱鍛機廠家比不多,而我們山東威力重工是比較有實力的一家,且有制造經驗,有為湖南客戶設計定做過一臺5000噸鍛造斗齒液壓機設備,客戶認可度、滿意度較高。了解更多挖掘機斗齒熱鍛液壓機設備,聯系公司張經理:18306370898(可加微信)

5公斤斗齒熱鍛機
5公斤斗齒熱鍛機-2000噸挖掘機斗齒熱鍛液壓機鍛造工藝:
1、將圓鋼按尺寸下料后加熱至鍛造所需的溫度;
2、然后將圓鋼水平放入預鍛型腔鍛打后翻轉90°再次進行鍛打,預鍛型腔為一端厚一端薄的扁平狀;
3、將預鍛后的坯料較薄的一端向下豎直放入終鍛型腔中,楔形沖頭向下對坯料進行劈擠鍛打,經過4~5次鍛打后,坯料成型為鍛造毛坯;
4、然后將鍛造毛坯進行機加工和熱處理。
鍛造挖掘機斗齒的步驟:1)加熱,)鍛胚,3)鍛壓成型,4)切邊沖孔,5)標識,6)正火,7)熱處理,8)拋砂,9)探傷;通過二次鍛壓增加了斗齒的硬度和耐磨性,經過入油和淬火理后,性能明顯優于其他方法生產出的產品性能,斗齒的硬度,沖擊韌度大大的提高,且獲得了更多的馬氏體組織。相對普通熔模鑄件,耐磨性提高了3倍以上。

5000噸斗齒組合多向模鍛液壓機
鍛造斗齒的生產流程:
1、挖掘機容易磨損的就是斗齒,原來都用鑄造斗齒,那是因為鑄造成本低廉,都是用廢舊鋼材融化后再加入合金粉末,砂模澆注,對環境污染嚴重。隨著國家對環境保護的加強,鍛造斗齒應運而生,但是,鍛造斗齒的生產工藝復雜繁瑣。
2、因為是整體熱模鍛打,子母模具的配合要求非常嚴格,大一點,模具容易被千噸的壓力機壓爆;小一點,產品容易出現流痕,影響產品質量。制作模具是在一個狹小密閉的環境中,小心翼翼地加工,看著都讓人屏息。
3、鍛造斗齒所用的原材料,都是大型鋼廠所生產的鉻鉬合金圓鋼,可不是再生的合金鋼,所以成本比鑄造高很多。需要先將合金圓鋼切割成規定的尺寸,然后高頻電加熱至1100°C左右,不用燃煤加熱,所以對環境沒有污染,國家也大力支持。
4、加工好的斗齒,還需要進行二次熱模鍛打,二次熱處理,之后涂好防銹漆,入庫編號。每一個斗齒,都是多名工人師傅相互配合才能完成的產品,環環相扣,不能快也不能慢;每一個斗齒,都像是一件浴火重生的藝術品,靜靜守候著用武之地的出現。
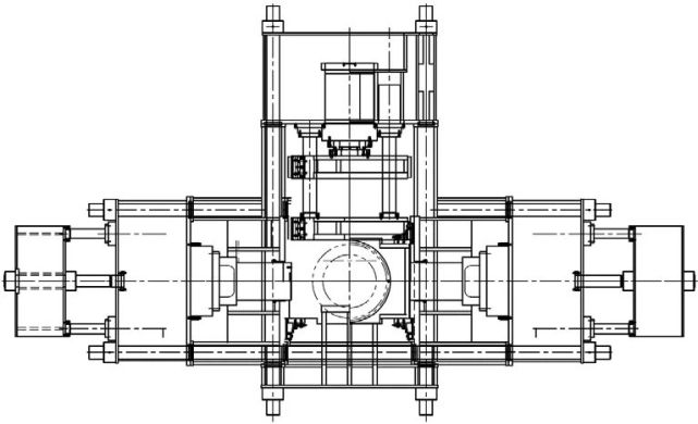
5公斤斗齒熱鍛機-2000噸挖掘機斗齒熱鍛液壓機組成包括整體機架、液壓缸、液壓機柱塞、滑塊、工作臺等。機架采用10塊獨立的板框組成,通過16組高強度螺桿橫向預緊;液壓缸通過液壓缸懸吊裝置固定在板框內側上部,缸底與板框接觸承載。5公斤斗齒熱鍛機-2000噸挖掘機斗齒熱鍛液壓機柱塞與滑塊連接,與回程缸一體驅動滑塊上下運動,滑塊的“X”型導向安裝在機架板框外側,工作臺離地面高度780-800mm。機器對有色和黑色金屬毛坯的熱態體積模鍛,還可實現板沖壓、鐓粗、矯直以及負荷偏心不大于200mm的其它工序。

2000噸挖掘機斗齒熱鍛液壓機
5公斤斗齒熱鍛機-2000噸挖掘機斗齒熱鍛液壓機優勢特點:
1、在直接傳動的液壓機上、活動橫梁在整個行程的任一位置都可獲得較大載荷。
2、2000噸挖掘機斗齒熱鍛液壓機在結構上易于得到較大的總壓力、較大的工作空間及較長的行程,因此便于鍛造較長、較高的大型鍛件,這往往是鍛錘和其他鍛壓設備難以做到的。
3、5公斤斗齒熱鍛機-2000噸挖掘機斗齒熱鍛液壓機上除設有大型模具墊板和定位器外,還有活動橫梁同步平衡系統,以保證偏心鍛造時,避免模具偏斜。
4、與鍛錘相比,5公斤斗齒熱鍛機-2000噸挖掘機斗齒熱鍛液壓機工作平穩,撞擊和震動很小、噪聲?。粚S房、地基要求不高,對周圍環境無損害。
5、與機械壓力機相比,5公斤斗齒熱鍛機-2000噸挖掘機斗齒熱鍛液壓機本體結構較簡單,溢流閥可限制作用在柱塞上的液體壓力,最大栽荷可受到限制,保護模具,也不會造成悶車。
6、5公斤斗齒熱鍛機-2000噸挖掘機斗齒熱鍛液壓機活動橫梁速度可以控制,工作行程時活動橫梁最大速度約為50mm/s,載荷可視為靜載荷;適合用于等溫模鍛、超塑性模鍛。

鍛造成型的挖掘機斗齒
上一篇:上一篇:630噸四柱液壓機拉伸成型不銹鋼地溝蓋板的過程
下一篇:下一篇:500噸液壓機沖壓一體成型巧克力水箱模壓板流程







